37 Tequesta Dr, BEAUDESERT, QLD 4285
Description
Family Living in a Convenient Estate Setting
House - BEAUDESERT QLD
Positioned in the popular Banksia Greens Estate, this contemporary residence is designed for comfort and everyday ease. With local shops, schools, and the Beaudesert Golf Club all within walking distance, the location offers the perfect balance of lifestyle and convenience.
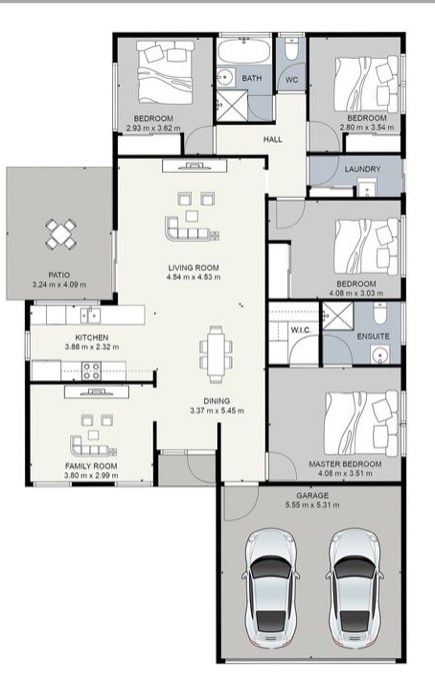
Inside, the home features four well-proportioned bedrooms, each fitted with built-in wardrobes and ceiling fans. The master suite includes a private ensuite and walk-in robe and is thoughtfully located away from the other bedrooms for added privacy.
Key Features:
Four bedrooms with built-in wardrobes and ceiling fans
Master suite with ensuite and walk-in robe
Light and airy open-plan lounge and dining area with air conditioning
Modern kitchen with electric cooking and dishwasher
Family bathroom plus ensuite
Covered outdoor entertainment area
Security screens throughout
Fully fenced yard, suitable for children and pets
Water tank for garden use
Location highlights:
Walkable distance to local schools and Beaudesert town centre
Minutes from food, shopping and local services
Approximately 50 minutes to Brisbane CBD and the Gold Coast
This home is ideal for families seeking a quiet, welcoming neighbourhood while remaining close to all the essentials. With its practical layout, modern finishes, and secure outdoor space, it is well suited to comfortable family living.
TO ARRANGE AN INSPECTION Click Request an inspection, enter your details, and submit. You’ll be notified of any changes or updates.
TO APPLY Click Get in touch to receive an online application link. Applications are also accepted via PDF on our website at www.qstateproperties.com.au
Property Features
- House
- 4 bed
- 2 bath
- 2 Parking Spaces
- Land is 704 m²
- Energy Rating 0.0
- 2 Garage



















