6 Lachlan St, GLENEAGLE, QLD 4285
Description
QUALITY DUPLEX WITH AMAZING OWNER!
House - GLENEAGLE QLD
Located within the Scenic Rise Estate this property has been built as a long term investment property and finished to the highest standard.
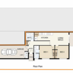
Inside you are greeted with a well appointed kitchen fitted with quality stainless steel appliances including a dishwasher and great storage bench space.
The kitchen overlooks the air conditioned open plan lounge and dining areas with large glass door and windows overlooking the back yard, with a side yard long enough to play cricket on!
Both bedrooms have built in robes with sliding doors and ceiling fans, with the main bedroom having an ensuite
Summary:�
* 2 Bedrooms, master with ensuite, 2nd bathroom with shower only
* Reverse cycle air conditioning
* Ceiling fans throughout
* Modern kitchen/lounge/dining open plan with air conditioning
* Dishwasher
* Outdoor undercover area
* Single remote lock up garage with laundry
* A great sized yard
Book your inspection today as this townhouse will not disappoint!
TO ARRANGE AN INSPECTION Click Request an inspection, enter your details, and submit. You’ll be notified of any changes or updates.
TO APPLY Click Get in touch to receive an online application link. Applications are also accepted via PDF on our website at www.qstateproperties.com.au
We encourage applying before inspecting the property for pre-approval.
If the days and times are not suitable please let us know as we will work to find a suitable time for all parties.
Property Features
- House
- 2 bed
- 2 bath
- 1 Parking Spaces
- Energy Rating 0.0
- Garage
- About


